The Food Center
Design Plans
James Beard said, “Food is our common ground, a universal experience.” That notion, along with the guiding value of collaboration sits, at the heart of the Lopez Food Center project. As we drafted and designed this centralized space for gathering in the name of food, we asked ourselves, “What are the biggest food-based needs in our community? How can we best meet those needs? What sort of space would give intentionality to it all?
Allow us to present to you, the finalized project plans for the Food Center Design.
THE TENANTS
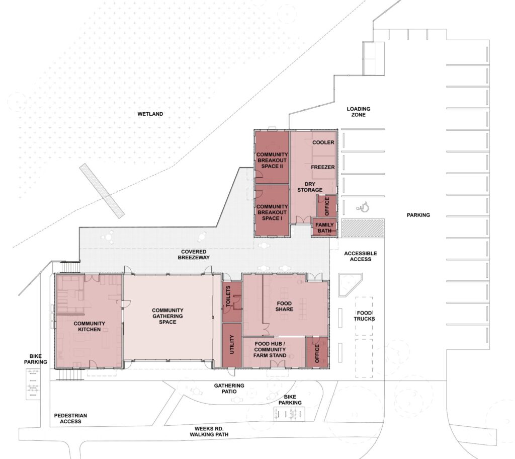
The LFC will Become a Home to:
- The Lopez Family Resource Center’s Lopez Food Share, the island’s food bank.
- San Juan Islands Food Hub, a member-owned co-op of more than thirty farm and food businesses from around the county with weekly ordering online.
- Lopez Island Family Resource Center’s Heart & Soul Recovery Café will have private space for all its weekly meetings in this central location.
Communal Space
The central “flex space” located next to the kitchen can be adjusted to accommodate different sized groups up to 30 people. It can be used to host gatherings, pop-up restaurants, private parties and much more.
Food Trucks
Food Trucks will be able to park permanently with access to water/handwashing sink, electrical hookups, wastewater disposal and outdoor tables. Customers will be able to choose among the several “dining” options and will have access to pleasant, covered tables and restrooms.
Communal Farmstand
Periodic communal farm stand will be developed in collaboration with the Lopez School L.I.F.E. Farm to School Program whose students would staff and manage the program and earn school credit while they learn about running a business. Farmers will get access to locals and tourists who come through the Village.
Food Storage
There is a growing need for secure storage space for refrigerated, frozen and dry foods on the island. Restaurants, farmers, food business entrepreneurs can rent affordable storage space at the Food Center.
Business Incubator
Small food business incubator spaces will be available where new businesses can open a pop-up food stores or even a pop-up restaurant. No such space with access to a commercial kitchen is currently available on the island. The Food Center will allow new business entrepreneurs to try out their ideas at a minimal cost.
Commercial Kitchen
The island has long needed a second commercial kitchen where small businesses can operate and where community groups can prepare – and sell - their products.
